GA42H單杠桿安全閥

GA42H單杠桿安全閥

  • 質量穩定
  • 價格合理
  • 交貨快捷
  • 泰通閥門為您提供全套工程閥門解決方案
  • 銷售:021-6810 3333    6139 0811
  • 傳真:021-5168 6322
  • 地址:上海南匯空港工業區金聞路1288號

詳細介紹

用途特點
GA42H型安全閥適用于溫度≤450℃的電站鍋爐和壓力容器上,防止壓力超過允許最高值,介質可為蒸汽、空氣。
主要零部件材料
NO. 零件名稱 C型 材料
1 閥體 碳鋼
2 導向套 不銹鋼
3 閥瓣 2Cr13
4 閥桿 2Cr13
5 杠桿 碳鋼
6 重錘 鑄鐵
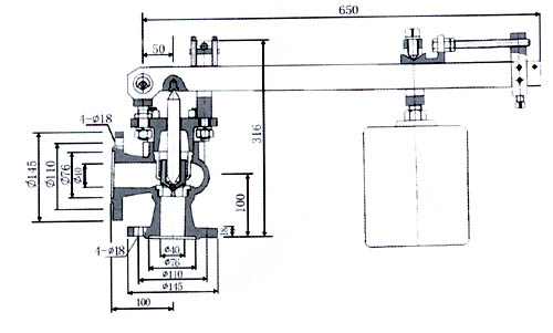
外形尺寸和連接尺寸(mm)
型號 公稱通徑DN(mm) 尺寸 (mm)
do-z D D1 D2 D6 f f1 b z-d L H 出口法蘭式 出口承插式
DN’ D2’ n-M’ D1’ D’ d1 K2 K3 D3
GA42H6 50 40×1 165 125 100 / 3 / 16 48 840 412 125 175 86 120 235 120 145 162 190
GA42H-25 50 40×1 165 125 100 / 3 / 20 48 840 412 125 175 86 120 235 120 145 162 190
GA42H-40 50 40×1 165 125 100 88 3 4 20 48 840 412 125 175 86 120 235 120 145 162 190
GA42H-64 50 40×1 175 135 105 88 3 4 26 4-23 840 420 125 175 86 120 235 120 145 162 190
GA42H00 50 40×1 195 145 112 88 3 4 28 4-25 840 420 125 175 86 120 235 120 145 162 190
產品結構

溫馨提示:“GA42H單杠桿安全閥”所有文字、數據、圖片均只適用于參考。
如需與實物相吻合的性能參數、結構尺寸參數等詳情請來電來函索取。
電話:021-68103333    傳真:021-51686322
  • 泰通二維碼掃一掃關注我們
  • 聯系我們
  • 公司地址:上海南匯空港工業區金聞路1288號
  • 浙江基地:溫州甌北東甌工業區
  • 銷售:021-68103333 
  • 郵箱:shttv@qq.com
© 2017 上海泰通閥門有限公司 版權所有 滬ICP備11033150號
Top

[關閉]免費接聽泰通銷售工程師電話

輸入手機或固定電話號碼,點擊“免費咨詢”按鈕后,
我們的服務人員會在15秒內回撥您。

手機請直接輸入:如 13878800000
座機前請加區號:如 02168103333
我們已對本次通話全程加密,您的通話費用我們已經幫您支付,請放心接聽!
免費通話所產生的費用由我們來支付,請放心接聽!
銷售熱線:021-6810 3333