平板閘閥

平板閘閥

  • 質量穩定
  • 價格合理
  • 交貨快捷
  • 泰通閥門為您提供全套工程閥門解決方案
  • 銷售:021-6810 3333    6139 0811
  • 傳真:021-5168 6322
  • 地址:上海南匯空港工業區金聞路1288號

詳細介紹

平板閘閥適用于天然氣,石油,化工,環保,城市管道,燃氣管線等輸送管線,放空系統和汽儲存裝置上,平板閘閥用作啟閉設備。Z43型帶導流孔單閘板式平板閘閥適用于天然氣開采和凈化的長輸管線。

平板閘閥的特點:
1.平板閘閥閥座的密封結構應為彈性有預緊力,上、下游密封座同時密封的結構。閥座與密封物間始終為面對面密封。
2.平板閘閥閥座有自清洗功能,并且在閥門開啟或關閉過程中不受氣流的直接沖刷。閥座應由有潤滑、不磨損材料制成。
3.閥門執行機構的故障不會影響到閥門的其它部分,維修和更換工作能夠在不拆下閥門的情況下進行。
(1) 軛架套管 – 鋁青銅軛架套管配置針形止推軸承,最大程度減少操作扭矩。
(2) 閥桿 – 螺紋長度直到托架;銷釘和點焊;具有穩定性。
(3) 壓力密封 – 結構簡單,配置分段扣環和鍍銀低碳鋼墊圈,有助于拆卸和實現最好的閥帽密封。
(4) 閥座環 – 焊接閥座環垂直于流動通道,易于維護。
(5) 執行機構 – 這些閥門可以配置電動、液動或氣動執行機構。DN300以下配置標準手動手輪,DN350以上配置斜齒輪操作機構。
(6) 軛架 – 完全裝配式軛架通過抗震測試,易于維護和安裝執行機構。
(7) 壓蓋 – 兩件式,自調節壓蓋,避免被彈出。
(8) 整體后座 – 硬面,使用壽命最長。
(9) 閥瓣 – 彈簧負載閥瓣能夠自行調節,減少執行機構的扭矩需求。
(10) 整體止動 – 整體鑄造托架止動裝置,定位組裝的托架閥瓣,使得閥座更加穩定可靠。

平板閘閥執行標準:
設計規范 結構長度 連接法蘭 試驗與檢驗 壓力-溫度 產品標識
JB/T5298 JB/T5298 JB/79 JB/T5298 GB9131 GB/T12220
API6D API6D ANSI6.5 API6D ANSI B16.34 MSS SP-25
平板閘閥產口性能規
設計等級 常溫下試驗壓力(MPa) 適用溫度℃ 適用介質
殼體 左密封 左密封 低壓密封 “G”型 “D”型 普通型 “抗硫”型 “基本”型
公稱壓力PN(MPa) 1.6 2.4 1.76 1.76 0.6 -29~50 -45~21 -2~121 H2S和CO2總含量大于500mg/m2的介質 石油天然氣、水等
2.5 3.75 2.75 2.75 0.6
4.0 6.0 4.4 4.4 0.6
6.4 9.6 7.04 7.04 0.6
磅級Lb 150 3.0 2.2 2.2 0.6
300 7.7 5.6 5.6 0.6
平板閘閥主要零部件材料:
閥門/閥蓋 WCB WC6 A352-LCB A351-CF8M
閘板 2Cr13+ENP 20CrMoV+STL ANSO410+ENP ANSI316+ENP
閥桿 2Cr13 2Cr13 A182-A6a A182-A316S
閥座 25+PTFE 20CrMoV+STL A105+PTFE A182-F316+PTFE
填料 NBR/FPM 柔性石墨/Flexible Graphite 聚四氟乙烯/PTFE+FPM
墊片 -
螺栓 35 35CrMo A193-B7M A193-B8
適用介質 水、油口、蒸汽 蒸汽、油品 丙烷、乙烯 硝酸類
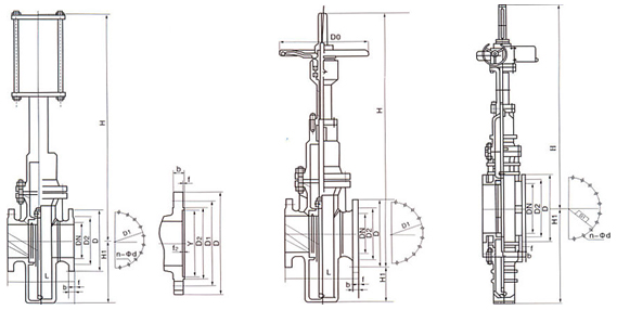
平板閘閥主要外形和連接尺寸PN1.6MPa-2.5MPa:
1.6MPa DN L D D1 D2 Do f b H H1 n-Φd
凸面法法
RF
(K)Z43WF6C
(K)Z543WF6C
(K)Z643WF6C
(K)Z943WF6C
50 178 160 125 100 250 3 16 584 80 4-Φ18
65 190 180 145 120 250 3 18 634 95 4-Φ18
80 203 195 160 135 250 3 20 688 100 8-Φ18
100 229 215 181 155 300 3 20 863 114 8-Φ18
125 254 245 210 185 350 3 22 940 132 8-Φ18
150 267 280 240 210 350 3 24 1030 150 8-Φ23
200 292 335 295 265 350 3 26 1277 168 12-Φ23
250 330 405 355 320 400 3 30 1491 203 12-Φ25
300 356 460 410 375 450 4 30 1701 237 12-Φ25
350 381 520 470 435 500 4 34 1875 265 16-Φ30
400 406 580 525 485 305 4 36 2180 300 16-Φ30
450 432 640 585 545 305 4 40 2440 325 20-Φ34
500 457 705 650 608 305 4 44 2860 360 20-Φ41
600 508 840 770 718 305 5 48 3450 425 20-Φ41
700 610 910 840 788 305 5 50 3960 460 24-Φ41
800 660 1020 950 898 305 5 52 4550 512 24-Φ41
900 711 1120 1050 998 250 5 54 5250 565 28-Φ48
1000 811 1250 1170 1110 250 5 56 5870 630 28-Φ18
2.5MPa 50 178 160 125 100 250 3 20 584 80 4-Φ18
凸面法法
RF
(K)Z43WF-25
(K)Z543WF-25
(K)Z643WF-25
(K)Z943WF-25
65 190 180 145 120 300 3 22 634 95 8-Φ18
80 203 195 160 135 350 3 22 388 100 8-Φ18
100 229 230 190 160 350 3 24 863 114 8-Φ23
125 254 270 220 188, 350 3

28

940 132 8-Φ25
150 267 300 250 218 400 3 30 1030 150 8-Φ25
200 292 360 310 278 450 3 34 1277 168 12-Φ25
250 330 425 370 332 500 3 36 1491 203 12-Φ30
300 356 485 430 390 305 4 40 1701 237 16-Φ30
350 381 550 490 448 305 4 44 1875 265 16-Φ34
400 406 610 550 505 305 4 48 2180 300 16-Φ34
450 432 660 600 555 305 4 50 2440 325 20-Φ34
500 457 730 660 610 305 4 52 2860 360 20-Φ41
600 508 840 770 718 305 5 56 3450 425 20-Φ41
700 610 955 875 815 305 5 60 3960 460 24-Φ48
800 660 1070 990 930 305 5 64 4550 512 24-Φ48
900 711 1180 1090 1025 - 5 66 5250 595 28-Φ54
1000 811 1305 1210 1140 - 5 68 5870 660 28-Φ48
無導流孔平板閘閥PN4.0MPa0.0MPa:
4.0MPa DN L D D1 D2 Y Do f f2 b H H1 n-Φd
凹凸法法
MFM
(K)Z43WF-40
(K)Z543WF-40
(K)Z643WF-40
(K)Z943WF-40
50 250 160 125 100 88 250 3 4 20 584 80 4-Φ18
65 280 180 145 120 110 250 3 4 22 634 95 8-Φ18
80 310 195 160 135 121 250 3 4 22 679 102 8-Φ18
100 350 230 190 160 150 300 3 4.5 24 863 115 8-Φ23
125 400 270 220 188 176 350 3 4.5 28 940 133 8-Φ25
150 450 300 250 218 204 350 3 4.5 30 1040 152 8-Φ25
200 550 375 320 282 260 350 3 4.5 38 1282 188 12-Φ30
250 650 445 385 345 313 400 3 4.5 42 1495 223 12-Φ34
300 750 415 450 408 364 450 4 4.5 46 1701 250 16-Φ34
350 850 470 510 465 422 500 4 5 52 1880 280 16-Φ34
400 950 655 585 535 474 305 4 5 58 2200 310 20-Φ41
450 1050 680 610 560 524 305 4 5 60 2480 335 20-Φ41
500 1150 755 670 612 576 305 4 5 62 2890 380 20-Φ48
600 1350 890 795 730 678 305 5 6 62 2480 450 20-Φ54
700 1450 <, /TD> 995 900 835 768 305 5 6 68 3985 500 24-Φ54
800 1650 1135 1030 960 876 305 5 6 76 4750 570 24-Φ58
6.4MPa 50 250 175 135 105 88 250 3 4 26 584 90 4-Φ23
凹凸法法
MFM
(K)Z43WF-64
(K)Z543WF-64
(K)Z643WF-64
(K)Z943WF-64
65 280 200 160 130 110 250 3 4 28 634 105 8-Φ23
80 310 210 170 140 121 250 3 4 30 679 110 8-Φ23
100 350 250 200 168 150 300 3 4.5 32 763 130 8-Φ25
125 400 295 202 176 350 3 4.5 36 970 150 8-Φ30 -
150 450 340 280 240 204 350 3 4.5 38 1038 175 8-Φ34
200 500 405 345 300 260 350 3 4.5 44 1282 210 12-Φ34
250 650 470 400 352 313 400 3 4.5 48 1495 240 12-Φ41
300 750 530 460 412 364 450 4 4.5 54 1965 270 16-Φ41
350 850 595 525 475 422 500 4 5 60 2185 300 16-Φ41
400 950 670 585 525 474 305 4 5 66 2573 335 16-Φ48
450 1050 715 630 570 524 305 4 5 68 2800 360 20-Φ48
500 1150 800 705 640 576 305 4 5 70 3280 405 20-Φ54
600 1350 930 820 750 678 305 5 6 76 380 470 20-Φ58
10.0MPa 50 250 195 145 112 88 250 3 4 28 590 100 4-Φ25
凹凸法法
MFM
(K)Z43WF00
(K)Z543WF00
(K)Z643WF00
(K)Z943WF00
65 280 220 170 138 110 250 3 4 32 640 115 8-Φ25
80 310 230 180 148 121 250 3 4 34 680 120 8-Φ25
100 350 265 210 172 150 300 3 4.5 38 870 135 8-Φ30
125 400 310 250 210 176 350 3 4.5 42 980 155 8-Φ34
150 450 350 290 250 204 350 3 4.5 46 1100 180 12-Φ34
200 550 430 360 312 260 350 3 4.5 454 1315 220 12-Φ41
250 650 500 430 382 313 400 3 4.5 60 1605 255 12-Φ41
300 75 585 500 442 364 450 4 4.5 70 1925 295 16-Φ48
350 850 665 560 408 422 500 4 5 76 2280 335 16-Φ54
400 950 715 620 558 474 305 4 5 80 2580 360 16-Φ54
產品尺寸

平板閘閥

溫馨提示:“平板閘閥”所有文字、數據、圖片均只適用于參考。
如需與實物相吻合的性能參數、結構尺寸參數等詳情請來電來函索取。
電話:021-68103333    傳真:021-51686322
  • 泰通二維碼掃一掃關注我們
  • 聯系我們
  • 公司地址:上海南匯空港工業區金聞路1288號
  • 浙江基地:溫州甌北東甌工業區
  • 銷售:021-68103333 
  • 郵箱:shttv@qq.com
© 2017 上海泰通閥門有限公司 版權所有 滬ICP備11033150號
Top

[關閉]免費接聽泰通銷售工程師電話

輸入手機或固定電話號碼,點擊“免費咨詢”按鈕后,
我們的服務人員會在15秒內回撥您。

手機請直接輸入:如 13878800000
座機前請加區號:如 02168103333
我們已對本次通話全程加密,您的通話費用我們已經幫您支付,請放心接聽!
免費通話所產生的費用由我們來支付,請放心接聽!
銷售熱線:021-6810 3333